Southwood Avenue
Coombe Dingle, Bristol
£300,000
3 bed terraced house
Bedrooms
3
Living Rooms
2
Bathrooms
1
Call
0117 9380611

A fabulous opportunity to purchase this wonderful terraced home on the popular Southwood Avenue in Coombe Dingle situated on the fringes of Kings Weston and Blaise Castle woodlands.

Map Floor plans EPC

Key features

  • 3 Bedrooms
  • Lounge/Dining Room
  • Kitchen
  • Modern Bathroom
  • Downstairs Cloakroom
  • Double Glazing
  • Gas Central Heating
  • Gardens
  • Popular Location
  • No Chain

Detail

A fabulous opportunity to purchase this wonderful terraced home on the popular Southwood Avenue in Coombe Dingle situated on the fringes of Kings Weston and Blaise Castle woodlands.

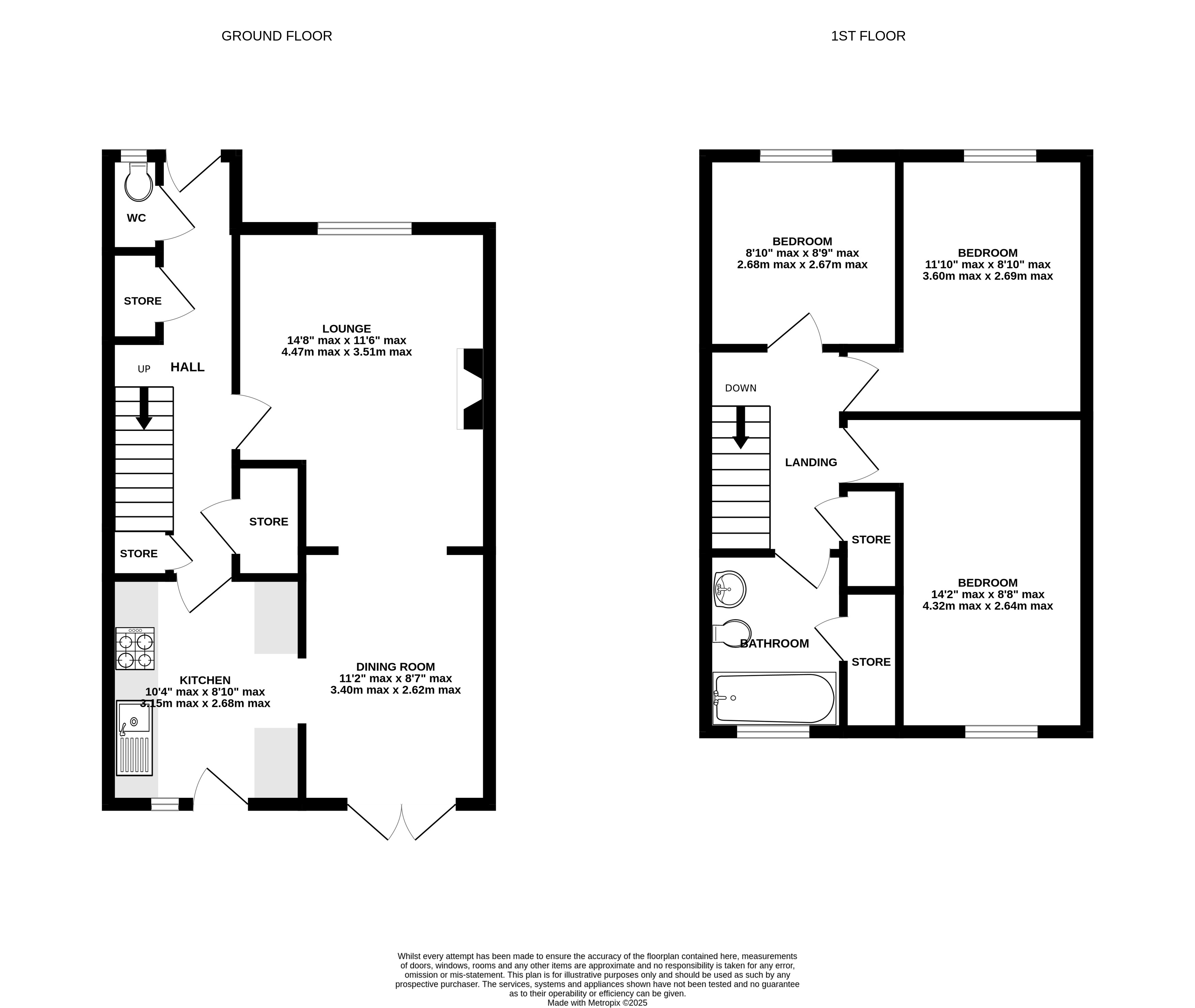
The front door opens to the entrance hall with stairs leading to the first floor, doors leading to the downstairs cloakroom, lounge/dining room and kitchen.

The first-floor landing has doors to all three bedrooms and a fitted bathroom.

The house offers double glazing, gas central heating, no onward chain and front and rear gardens.

Outside

The rear garden is tiered and enclosed with a rear access gate.

The front garden has a lawn area with flower bed borders and is enclosed by low level fencing.

Location

The property is just a short walk away from Westbury Lane where you will find a handful of shops and bus stops. Both Shirehampton Village and Westbury Village are easily accessible from this location and within a short walk to the Blaise Castle Estate.

We think...

this property will be popular with many buyer types who are looking for a house to make their own which is situated just a stones throw from the rich woodlands of Kings Weston and Blaise Castle.

Material information (provided by owner)

Freehold and Council tax band - C

Shirehampton Sales Office

14-16 High Street, Shirehampton, Bristol, BS11 0DP
Directions
Directions
Call
0117 9380611

We're open...

Sunday Closed
Monday 09:00 - 18:00
Tuesday 09:00 - 18:00
Wednesday 09:00 - 18:00
Thursday 09:00 - 18:00
Friday 09:00 - 18:00
Saturday 09:00 - 16:00