Atwood Drive
Lawrence Weston, Bristol
£325,000
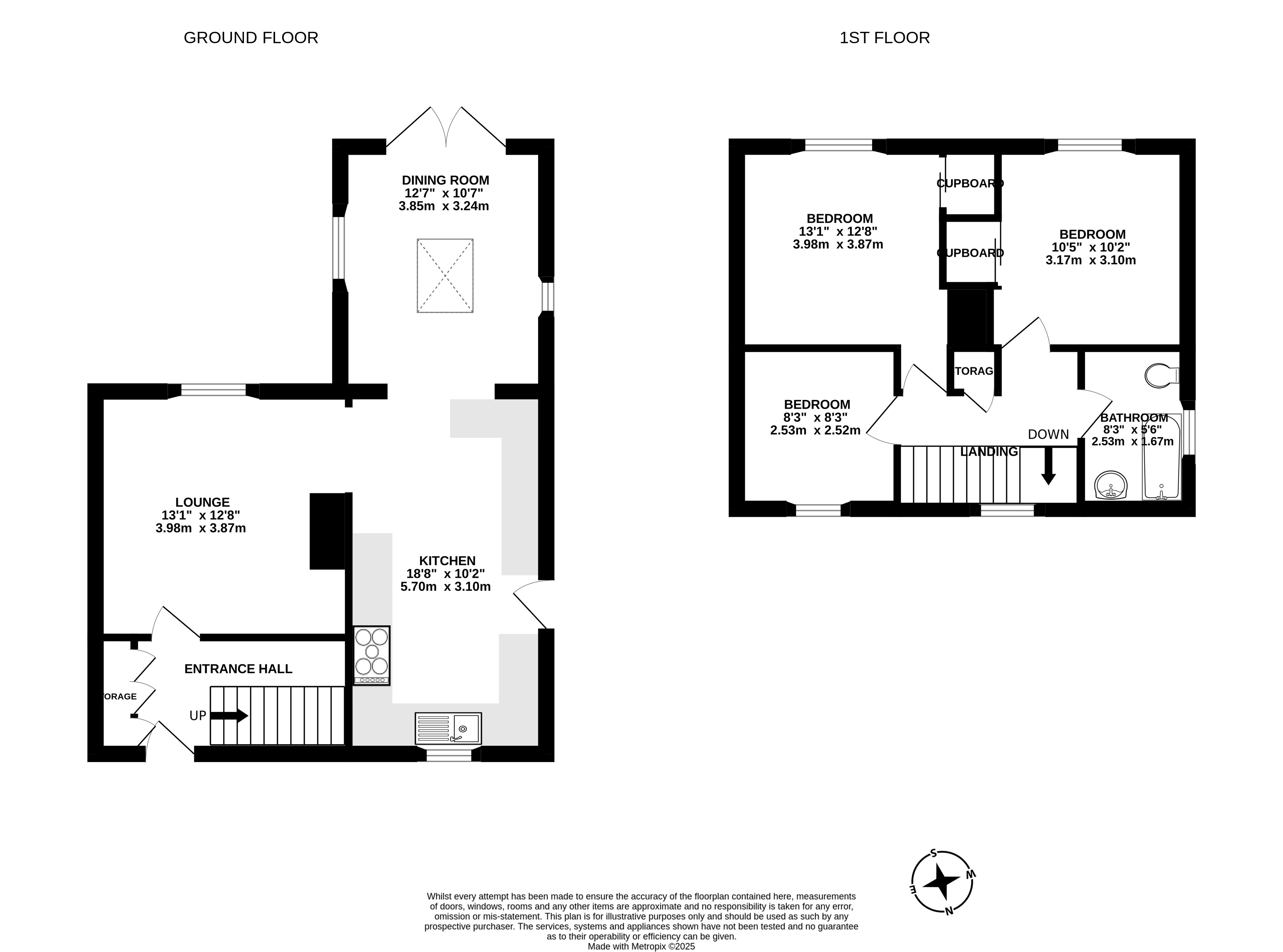
3 bed semi-detached house
Bedrooms
3
Living Rooms
2
Bathrooms
1
Call
0117 9380611

An extended 3 bedroom home nestled on a quiet residential street in Lawrence Weston, within walking distance to Blaise Castle.

Map Floor plans EPC

Key features

  • Extended at the rear
  • Close to Blaise Castle and other amenities
  • Large kitchen/diner/lounge
  • Off street parking
  • South facing garden
  • Recently fitted bathroom

Detail

As you step into the spacious hallway, stairs ascend to the first floor, and you have access into the lounge.

Sitting at the back of this home, the lounge offers pleasant views of the rear garden.
An opening from the lounge leads into the kitchen/diner, this really is the heart of this home.

The sellers have extended to create additional living space, the two windows, French doors and Velux windows allow plenty of light to flood into this room.

The bespoke wooden kitchen has been thoughtfully designed with ample storage and worktop space with space for a range cooker.

Upstairs you will find 3 bedrooms, all of which accommodate a double bed. The family bathroom is a generous size and has also been recently updated.

This property is Laing-Easi Form construction, lending criteria must be checked.

Outside

Accessed via French doors from the dining room, this southerly facing garden is an ideal space for families with its patio area for outdoor entertainment and lawned area.

Location

Nearby the property you have the pleasant Blaise Castle estate and woodlands. As well as being just a short walk to the local shops, cafés and bus stops.

We think...

A sizeable home that makes an ideal purchase for first time buyers.

Material information (provided by owner)

Freehold
Council tax band - B

Shirehampton Sales Office

14-16 High Street, Shirehampton, Bristol, BS11 0DP
Directions
Directions
Call
0117 9380611

We're open...

Sunday Closed
Monday 09:00 - 18:00
Tuesday 09:00 - 18:00
Wednesday 09:00 - 18:00
Thursday 09:00 - 18:00
Friday 09:00 - 18:00
Saturday 09:00 - 16:00